ΤΥΠΟΣ

Κτίριο

ΚΛΑΔΟΙ ΔΡΑΣΤΗΡΙΟΤΗΤΑΣ

Καπναποθήκη

ΚΑΤΑΣΤΑΣΗ ΜΝΗΜΕΙΟΥ

Δεν διασώζεται

ΚΑΤΑΣΤΑΣΗ ΕΞΟΠΛΙΣΜΟΥ

Δεν διασώζεται

ΚΑΤΑΓΡΑΦΕΑΣ

Φασουράκη Ραλλού

ΠΕΡΙΦΕΡΕΙΑΚΗ ΕΝΟΤΗΤΑ

Θεσσαλονίκης

ΠΟΛΗ

Θεσσαλονίκη

ΣΥΝΤΕΤΑΓΜΕΝΕΣ

40.6398713, 22.9404624

ΠΑΡΟΧΟΣ ΠΛΗΡΟΦΟΡΙΑΣ

ΒιΔΑ/VIdA

ΠΛΗΡΟΦΟΡΙΕΣ

 

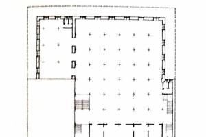
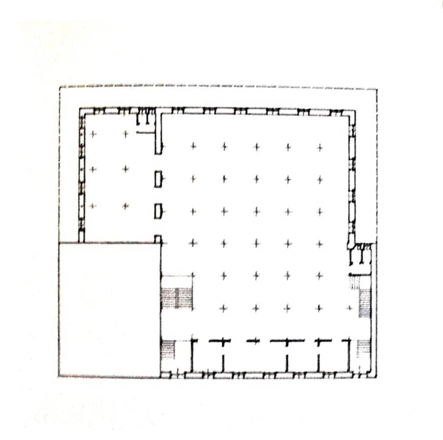
ΚΤΙΡΙΟ ΟΔΟΥ Κ. ΚΡΥΣΤΑΛΛΗ 4-6 «Η δεύετερη καπναποθήκη του Μιχαήλ Σαχσαμάνογλου (…) ανεγέρθηκε το 1929, σύμφωνα με τη μελέτη του πολιτικού μηχανικού Β. Βασιλειάδη και λειτούργησε ως κατά μήκος επέκταση του αρχικού κτιρίου. (…) Μορφολογικά το κτίριο εντασσόταν στα πλαίσια του εκλεκτικισμού. (…) Η καπναποθήκη κατεδαφίστηκε ταυτόχρονα με την πτογενέστερη όμορή της. Στη θέση των κτιρίων Κ. Κρυστάλλη 4-6-8, ανεγέρθηκε πολυώροφο κτίριο επαγγελματικών χώρων με ισόγεια καταστήματα.» πηγή: «ΟΙ ΚΑΠΝΑΠΟΘΗΚΕΣ ΤΗΣ ΘΕΣΣΑΛΟΝΊΚΗΣ», Σοφία Γκουβούση, Σπυρίδων Ταβλίκος, University Studio Press, 2018, καπναποθήκη νο. 21, σελίδα 151

ΠΗΓΕΣ

 «ΟΙ ΚΑΠΝΑΠΟΘΗΚΕΣ ΤΗΣ ΘΕΣΣΑΛΟΝΊΚΗΣ», Σοφία Γκουβούση, Σπυρίδων Ταβλίκος, University Studio Press, 2018

BINTEO

ΦΩΤΟΓΡΑΦΙΕΣ

ΑΝΑΦΟΡΑ

Αν χρησιμοποιήσετε πληροφορίες και στοιχεία που περιέχονται στις ιστοσελίδες vidarchives.gr, vidaomada.gr, vida-omada.blogspot.com και στο συνοδευτικό χάρτη παρακαλούμε πολύ να χρησιμοποιήσετε τις ακόλουθες αναφορές:

ΓΙΑ ΓΕΝΙΚΗ ΑΝΑΦΟΡΑ
Βακαλοπούλου Μ., Δανιήλ Μ., Λαμπρόπουλος Χ., Φασουράκης Η. (επιμ.), 2017, Βιομηχανικά Δελτία Απογραφής (www.vidarchives.gr).

ΓΙΑ ΑΝΑΦΟΡΑ ΣΥΓΚΕΚΡΙΜΕΝΟΥ ΔΕΛΤΙΟΥ
Φασουράκη Ραλλού, 2Η ΚΑΠΝΑΠΟΘΗΚΗ Μ. ΣΑΧΣΑΜΑΝΟΓΛΟΥ, στο Βακαλοπούλου Μ., Δανιήλ Μ., Λαμπρόπουλος Χ., Φασουράκης Η. (επιμ.), 2017, Βιομηχανικά Δελτία Απογραφής (www.vidarchives.gr/reports/2019_06_988).

Στείλτε μας σχόλια / παρατηρήσεις

{{ errors[0] }}

{{ errors[0] }}

{{ errors[0] }}
Σε ευχαριστούμε πολύ, το σχόλιό σας έχει καταχωρηθεί με επιτυχία!
Xρησιμοποιούμε cookies για να διασφαλίσουμε την εύρυθμη λειτουργία του site και την καλύτερη εμπειρία χρήσης