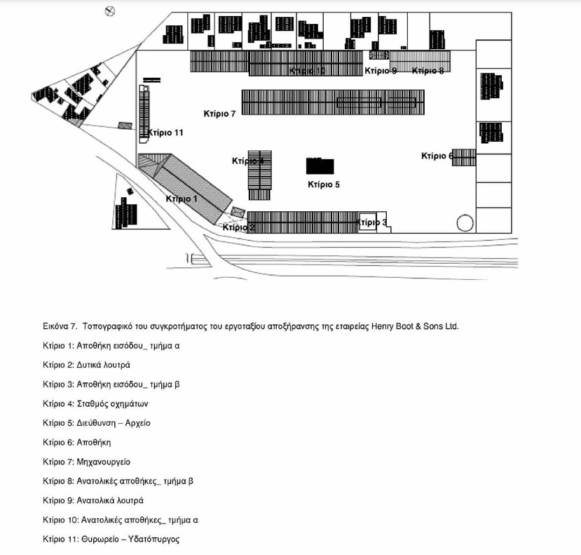
Το συγκρότημα της ΚΟΜΔΕ, λειτούργησε ως κεντρικό εργοτάξιο της εταιρείας Henry Boot and Sons Limited, η οποία ανέλαβε, την περίοδο πριν από τον Β’ Παγκόσμιο Πόλεμο τα έργα αποξήρανσης της Θεσσαλίας. Τα έργα ανατέθηκαν στην εταιρεία με τη σύμβαση της 17 Δεκεμβρίου 1929, η οποία κυρώθηκε με τον νόμο 4500/1930. Το έργο της αποξήρανσης της Θεσσαλίας εντάσσεται σε μία σειρά από μεγάλα τεχνικά έργα τα οποία υλοποιήθηκαν εκείνη την περίοδο στην Ελλάδα. Σημαντικότερα εξ’ αυτών είναι, τα έργα αποξήρανσης των ελών και λιμνών στις πεδιάδες και τους ποταμούς της Μακεδονίας, τα οποία προηγήθηκαν λόγω του προσφυγικού προβλήματος, αυτών της Θεσσαλίας. Τα έργα αποξήρανσης, στη Μακεδονία, ξεκίνησαν το 1925-1928 από τις αμερικανικές εταιρείες Foundation Co και Μοnks & Ulen. Την ίδια εποχή (1925-1930) προχωρούσαν και τα υδραυλικά έργα στην Αττική με το φράγμα Μαραθώνα και την ύδρευση της πρωτεύουσας από την Ulen. Για την αποξήρανση της Θεσσαλίας είχαν προϋπάρξει οι μελέτες Nobile του 1911 και Jackson του 1918-1919. Με τη σύμβαση του 1929, ανατέθηκε στην εταιρεία του Henry Boot η εκπόνηση τεχνικής προμελέτης και οικονομικής μελέτης με προβλεπόμενο χρόνο εκπόνησης δύο έτη. Αντικείμενο των μελετών ήσαν τα αποξηραντικά, αρδευτικά και αντιπλημμυρικά έργα στη Θεσσαλία, την Ήπειρο, την Κρήτη και τον Βοιωτικό Κηφισσό. Οι προτάσεις της εταιρείας Henry Boot and Sons κατατέθηκαν στο Ελληνικό Δημόσιο το 1935, εξετάστηκαν από επιτροπή του υπουργείου Συγκοινωνιών και ένα τμήμα των έργων ξεκίνησε το 1936. Επρόκειτο για έργα εγκιβωτισμού ρεμάτων, εκτροπής ποταμών, κατασκευής διωρύγων, υδατοφρακτών, αναχωμάτων κλπ. Εφαρμόστηκαν τεχνικές μέθοδοι πρωτόγνωροι στην Ελλάδα και χρησιμοποιήθηκε προωθημένος τεχνικός εξοπλισμός . Μεταπολεμικά, τα εγγειοβελτιωτικά και αποξηραντικά έργα συνεχίστηκαν από το Υπουργείο Δημοσίων Έργων. Έως το 1964 στη Θεσσαλία, αποξηράνθηκαν 35.000 στρέμματα και προστατεύθηκαν από τις πλημμύρες 1.200.000 στρέμματα. Η εταιρεία κατασκεύασε το 1936 για τις ανάγκες του έργου της αποξήρανσης το κεντρικό της εργοτάξιο στη συνοικία Σαράγια των Τρικάλων . Η έκταση του, αναφέρεται ότι ανερχόταν σε 18 στρέμματα περίπου. Η απόκλιση από τα 15,5 στρέμματα που σήμερα καταλαμβάνει το οικόπεδο της ΚΟΜΔΕ πιθανόν να οφείλεται σε κατάτμηση μέρους του. Το εργοτάξιο περιλάμβανε μία σειρά από κτιριακές εγκαταστάσεις οι οποίες σώζονται μέχρι σήμερα σχεδόν ακέραιες και στο σύνολο τους. Η σύνθεση του συγκροτήματος γίνεται με τρεις περιμετρικές πτέρυγες κατά μήκος των αντίστοιχων πλευρών του περίβολου και τρία κτίρια στο κέντρο. Στις πτέρυγες περιλαμβάνονται υπόστεγα, αποθήκες, γραφεία προσωπικού και βοηθητικοί χώροι Στο κέντρο διατάσσεται το επίμηκες κτίριο του Μηχανουργείου, ο Σταθμός Οχημάτων και το Κτίριο Διεύθυνσης. Το κτίριο του Μηχανουργείου, είναι το κεντρικό κτίριο του συγκροτήματος τόσο ως προς τη θέση του μέσα στο οικόπεδο όσο και ως προς τη λειτουργία του. Το Μηχανουργείο αποτελούσε τον βασικό χώρο επισκευών και παραγωγής εξαρτημάτων που υποστήριζε τη συνολική λειτουργία του εργοταξίου και των εγγειοβελτιωτικών έργων στη Θεσσαλία. Πρόκειται για ένα επίμηκες κτίριο, ορθογώνιας κάτοψης με μήκος 110,80 μέτρα, πλάτος 12,60 μέτρα. Καλύπτει επιφάνεια 1.396 τετραγωνικών μέτρων. Στεγάζεται με δίρριχτη στέγη η οποία στους χώρους των καμινιών και του χυτηρίου έχει δύο υπερυψωμένους φωταγωγούς. Το Μηχανουργείο της ΚΟΜΔΕ, εκτιμάται ότι είναι ένα από τα μεγαλύτερα γνωστά μηχανουργεία της χώρας και ένα από τα ελάχιστα σωζόμενα τέτοιας κλίμακας.. Ως προς τα μεγέθη του, πιθανόν να είναι το μεγαλύτερο της νότιας και κεντρικής Ελλάδας, είναι δε συγκρίσιμο με το Μηχανουργείο Βασιλειάδη στον Πειραιά (έχει κατεδαφιστεί) και το Μηχανουργείο ΟΣΕ επίσης στον Πειραιά, το Μηχανουργείο της Γαλλικής Εταιρείας Μεταλλείων Λαυρίου και το Μηχανουργείο του Νεωρίου στη Σύρο. Πηγή: Ν.Μπελαβίλας, Β.Τροβά, «ΕΠΑΝΑΧΡΗΣΗ ΧΩΡΟΥ ΕΡΓΟΤΑΞΙΟΥ ΑΠΟΞΗΡΑΝΣΗΣ ΘΕΣΣΑΛΙΑΣ ΣΤΑ ΤΡΙΚΑΛΑ, ΑΠΟΤΥΠΩΣΗ-ΑΠΟΤΙΜΗΣΗ ΤΟΥ ΥΠΑΡΧΟΝΤΟΣ ΚΤΙΡΙΑΚΟΥ ΚΑΙ ΜΗΧΑΝΟΛΟΓΙΚΟΥ ΔΥΝΑΜΙΚΟΥ ΚΑΙ ΔΙΕΡΕΥΝΗΣΗ ΜΕΛΛΟΝΤΙΚΩΝ ΧΡΗΣΕΩΝ», Τμήμα Αρχιτεκτόνων Μηχανικών Παν/μίου Θεσσαλίας, Βόλος 2003-2004
Αν χρησιμοποιήσετε πληροφορίες και στοιχεία που περιέχονται στις ιστοσελίδες vidarchives.gr, vidaomada.gr, vida-omada.blogspot.com και στο συνοδευτικό χάρτη παρακαλούμε πολύ να χρησιμοποιήσετε τις ακόλουθες αναφορές:
ΓΙΑ ΓΕΝΙΚΗ ΑΝΑΦΟΡΑ
Βακαλοπούλου Μ., Δανιήλ Μ., Λαμπρόπουλος Χ., Φασουράκης Η. (επιμ.), 2017, Βιομηχανικά Δελτία Απογραφής (www.vidarchives.gr).
ΓΙΑ ΑΝΑΦΟΡΑ ΣΥΓΚΕΚΡΙΜΕΝΟΥ ΔΕΛΤΙΟΥ
ΗΡΑΚΛΗΣ ΦΑΣΟΥΡΑΚΗΣ, ΣΥΛΛΟΓΟΣ ΦΙΛΩΝ ΣΙΔΗΡΟΔΡΟΜΟΥ ΤΡΙΚΑΛΩΝ Σ.Φ.Σ.Τ., ΝΙΚΟΣ ΜΠΕΛΑΒΙΛΑΣ, ΚΟΜΔΕ ( ΚΕΝΤΡΟ ΟΧΗΜΑΤΩΝ ΜΗΧΑΝΗΜΑΤΩΝ ΔΗΜΟΣΙΩΝ ΕΡΓΩΝ), στο Βακαλοπούλου Μ., Δανιήλ Μ., Λαμπρόπουλος Χ.,
Φασουράκης Η. (επιμ.), 2017, Βιομηχανικά Δελτία Απογραφής (www.vidarchives.gr/reports/2020_02_1148).
Στείλτε μας σχόλια / παρατηρήσεις