ΤΥΠΟΣ

Εγκατάσταση

ΚΛΑΔΟΙ ΔΡΑΣΤΗΡΙΟΤΗΤΑΣ

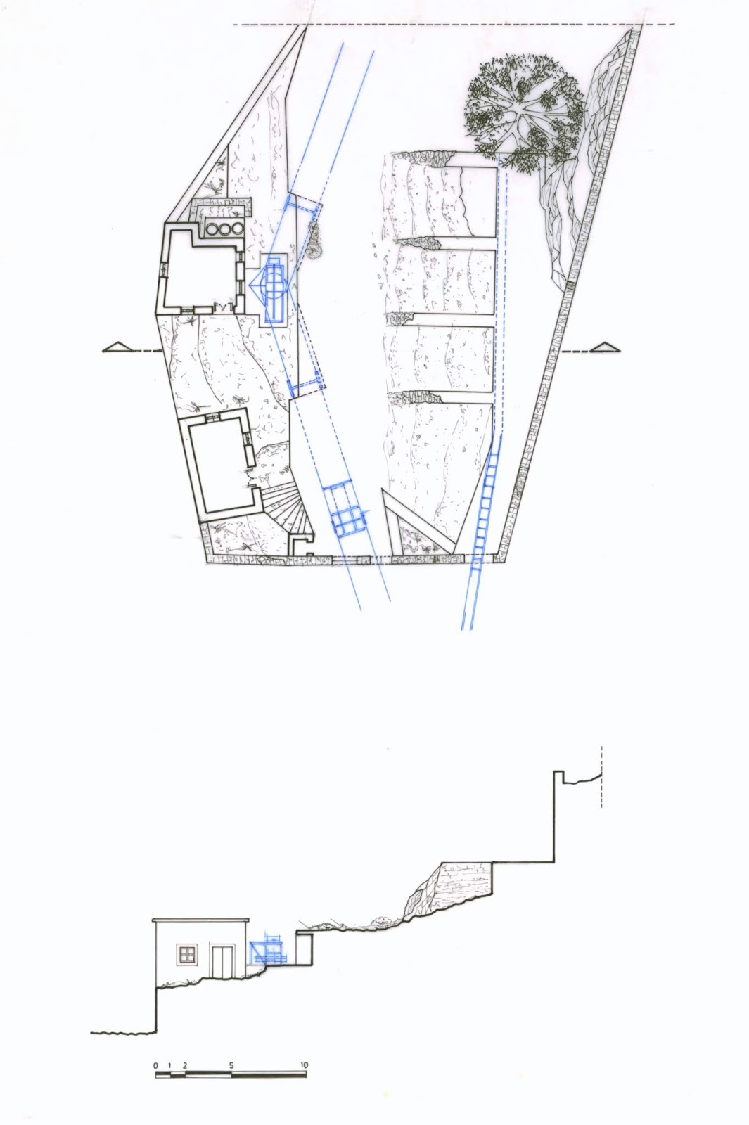
Μεταλλεία Σταθμός εναερίου

ΠΕΡΙΟΔΟΣ ΛΕΙΤΟΥΡΓΙΑΣ

0-1940

ΚΑΤΑΣΤΑΣΗ ΜΝΗΜΕΙΟΥ

Εγκαταλελειμμένο

ΚΑΤΑΣΤΑΣΗ ΕΞΟΠΛΙΣΜΟΥ

Διασώζεται

ΚΑΘΕΣΤΩΣ ΠΡΟΣΤΑΣΙΑΣ

Διατηρητέο

ΚΑΤΑΓΡΑΦΕΑΣ

ΠΕΤΡΟΣ ΑΝΑΜΑΤΕΡΟΣ, ΝΤΙΝΑ ΜΟΥΤΑΦΗ, ΚΩΣΤΑΣ ΜΑΥΡΟΓΙΑΝΝΗΣ, ΕΙΡΗΝΗ ΓΡΑΤΣΙΑ, ΗΡΑΚΛΗΣ ΦΑΣΟΥΡΑΚΗΣ, ΝΙΚΟΣ ΜΠΕΛΑΒΙΛΑΣ

ΣΥΝΕΙΣΦΟΡΑ

ΝΤΙΝΟΣ ΙΑΤΡΟΥ, ΔΗΜΗΤΡΑ ΛΟΪΖΟΥ ΒΟΥΛΓΑΡΑΚΗ, ΓΑΡΥΦΑΛΙΑ ΜΑΥΡΟΥ

ΠΕΡΙΦΕΡΕΙΑΚΗ ΕΝΟΤΗΤΑ

Νάξου

ΠΕΡΙΟΧΗ

Στραβολαγγάδα

ΠΟΛΗ

Βορειοανατολική Νάξος

ΣΥΝΤΕΤΑΓΜΕΝΕΣ

37.1196111, 25.5512778

ΠΑΡΟΧΟΣ ΠΛΗΡΟΦΟΡΙΑΣ

ΒιΔΑ/VIdA

ΠΗΓΕΣ

  1. ΛΑΓΟΠΟΥΛΟΣ Α., ΜΑΝΩΛΑ Δ., ΥΔΡΑΙΟΥ Μ., "Διαδρομές στα μονοπάτια της σμύριδας", Τμήμα Αρχιτεκτονικής σχολής, Ε.Μ.Π., ΑΘΗΑΝ 2010
  2. ΜΑΝΩΛΑ ΠΑΡΑΣΚΕΥΗ, "Στρατηγική ανάλυση της εταιρείας ¨ΣΜΥΡΙΔΩΡΥΧΕΙΑ ΝΑΞΟΥ¨", Α.Ε.Ι. ΠΕΙΡΑΙΑ Τ.Τ., Τμήμα Λογιστικής & Χρηματοοικονομικής, Αιγάλεω 2018
  3. ΠΟΛΥΖΟΣ Γ., ΦΡΑΓΚΙΣΚΟΣ Α., ΚΑΤΕΡΙΝΗ Τ., ΜΠΕΛΑΒΙΛΑΣ Ν., ΠΛΥΤΑΣ Α., Ερευνητικό πρόγραμμα, "Καταγραφή και αποτίμηση του ιστορικού βιομηχανικού εξοπλισμού στα σμυριδωρυχεία Νάξου", Επιτροπή ερευνών Ε.Μ.Π., 09-1996 / 01-1997
  4. Ιστορικό αρχείο Νάξου, τμήμα των Γ.Α.Κ. Νάξου
  5. Σμύριδα Νάξου / Σύνδεσμος Σμυριδορυκτών Κορώνου Νάξου
  6. Αρχείο Μανώλη Δ. Μανωλά
  7. 1878 / Η ΕΛΛΑΣ ΕΞΕΤΑΖΟΜΕΝΗ ΓΕΩΛΟΓΙΚΩΣ ΚΑΙ ΟΡΥΚΤΟΛΟΓΙΚΩΣ - ΣΜΥΡΙΔΑ
  8. ντοκιμαντέρ «Emery Tales»
  9. ΟΡΕΙΝΟΣ ΑΞΩΤΗΣ : 1930 ένα τρομερό δυστύχημα στα σμυριδωρυχεία Ναξου 
  10. https://www.eyploia.gr/%CF%83%CE%BC%CF%8D%CF%81%CE%B9%CE%B4%CE%B1-%CE%BD%CE%AC%CE%BE%CE%BF%CF%85/
  11. Σελίδα στο fb βιομηχανικής αρχαιολογίας
  12. Η σμύριδα της Νάξου και ο κύκλος των χαμένων ευκαιριών
     

BINTEO

ΜΑΥΡΗ ΓΗ 1952-Σκηνοθεσία: Στέλιος Τατασόπουλος Σενάριο: Νίκος Σφυροέρας Φωτογραφία: Τζανής Αλιφέρης Μουσική σύνθεση: Γιώργος Καζάσογλου Εταιρία παραγωγής: Σπεκτ Φιλμ
Η Susanne Bausinger, ως δημοσιογράφος και ο Στέλιος Ευσταθόπουλος, ως οπερατέρ γνωρίστηκαν και συνεργάζονται σχεδόν 25 χρόνια για το πρώτο κανάλι της δημόσιας γερμανικής τηλεόρασης, ARD. Στο διάστημα αυτό ταξίδεψαν σε όλη την Ελλάδα, παράγοντας ρεπορτάζ ειδήσεων, αφιερώματα και ντοκιμαντέρ. Εκτός από μια δυνατή φιλία τους δένει μια κοινή αισθητική στην αφήγηση ανθρώπινων ιστοριών, που στο ντοκιμαντέρ «Emery Tales» εκφράζεται με τον καλύτερο δυνατό τρόπο. https://www.facebook.com/emerytales

ΦΩΤΟΓΡΑΦΙΕΣ

ΑΝΑΦΟΡΑ

Αν χρησιμοποιήσετε πληροφορίες και στοιχεία που περιέχονται στις ιστοσελίδες vidarchives.gr, vidaomada.gr, vida-omada.blogspot.com και στο συνοδευτικό χάρτη παρακαλούμε πολύ να χρησιμοποιήσετε τις ακόλουθες αναφορές:

ΓΙΑ ΓΕΝΙΚΗ ΑΝΑΦΟΡΑ
Βακαλοπούλου Μ., Δανιήλ Μ., Λαμπρόπουλος Χ., Φασουράκης Η. (επιμ.), 2017, Βιομηχανικά Δελτία Απογραφής (www.vidarchives.gr).

ΓΙΑ ΑΝΑΦΟΡΑ ΣΥΓΚΕΚΡΙΜΕΝΟΥ ΔΕΛΤΙΟΥ
ΠΕΤΡΟΣ ΑΝΑΜΑΤΕΡΟΣ, ΝΤΙΝΑ ΜΟΥΤΑΦΗ, ΚΩΣΤΑΣ ΜΑΥΡΟΓΙΑΝΝΗΣ, ΕΙΡΗΝΗ ΓΡΑΤΣΙΑ, ΗΡΑΚΛΗΣ ΦΑΣΟΥΡΑΚΗΣ, ΝΙΚΟΣ ΜΠΕΛΑΒΙΛΑΣ, ΣΜΥΡΙΔΩΡΥΧΕΙΑ ΝΑΞΟΥ - ΣΤΑΘΜΟΣ ΣΤΡΑΒΟΛΑΓΚΑΔΑΣ, στο Βακαλοπούλου Μ., Δανιήλ Μ., Λαμπρόπουλος Χ., Φασουράκης Η. (επιμ.), 2017, Βιομηχανικά Δελτία Απογραφής (www.vidarchives.gr/reports/2020_04_1255).

Στείλτε μας σχόλια / παρατηρήσεις

{{ errors[0] }}

{{ errors[0] }}

{{ errors[0] }}
Σε ευχαριστούμε πολύ, το σχόλιό σας έχει καταχωρηθεί με επιτυχία!
Xρησιμοποιούμε cookies για να διασφαλίσουμε την εύρυθμη λειτουργία του site και την καλύτερη εμπειρία χρήσης